家用電器制造業中的液壓系統
首頁 ? 液壓行業知識 ? 家用電器制造業中的液壓系統

         家用電器工業是一個伴隨科學技術發展和人民物質文化需求提高而出現的新興產業。在 滿足制造工藝要求的前提下,采用液壓技術是滿足家電制造設備專業化、連續化、高速化、 自動化生產技術要求和保證產品質量的重要途徑。由于家電行業起步較晚,除了采用液壓技 術、氣動技術外,家電制造業的生產設備一般與近代微電子技術具有較為緊密的聯系。當 前,液壓技術在家電制造設備中的應用趨向是機電液一體化。
          五金工具制造屬于一個傳統產業,但隨著近年來國際經濟一體化進程的加快,這一行業 也出現了產品更新換代速度加快的趨勢。為了適應這一趨勢,在五金制造設備中,液壓技術 的應用日益增多,如液壓制釘機、工具錘裝柄機、門鎖成型機等。
          顯像管玻殼液壓剪切機床
          主機功能結構
          顯像管是電視機、計算機等家用電器的重要器件。顯像管生產中其玻殼成型的第一道關 口是料滴的剪切。料滴是由某些特定的物質經高溫熔化而成的液態混合物。該液壓剪切機床 的任務是將熔化狀態的黏性液流剪切成玻殼坯料(料滴),料滴經屏壓機壓制成型后再經過 封焊等工藝過程成為顯像管。機床對料滴的剪切精度直接影響玻殼的質量。
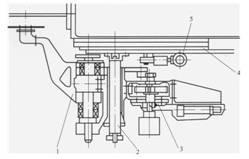
          液壓剪切機床的主機(見圖1)由剪切臂、機身、減速止停機構、冷卻系統和調整機 構等五部分組成。機身為吊裝結構,安裝在機架的復合安裝板上,機身主體是一根機身軸,其結構如圖2所示。機身軸5的上端部用普通平鍵和螺母通過支架板吊裝在復合安裝板上,機身軸外面裝有安裝架4,在安裝架和機身軸之間裝有導套2,通過錐套3上的螺紋調節安裝架的軸向位置,導套的軸向移動可以通過軸下端的螺母1進行調節,機身軸上下端安裝有推力軸承6,便于軸上零部件的調節。 
                                                                  
                                                                                       圖9-1 液壓剪切機床的主機結構示意圖
                                                                 1-剪切臂;2-機身;3-減速止停機構;4-冷卻系統;5-調整機構;6-推力球軸承
         剪切臂相當于一個單自由度回轉坐標形擺動機械手,其工作原理如圖3所示。裝有軸承的兩個剪切臂1安裝在主軸2上下兩部分,主軸組件固定在圖9-2中的安裝架4上,主軸上部通過支架裝在復合安裝板上,圓柱向心推力滾子軸承承受剪切臂部件的軸向載荷并使剪切臂擺動自由。曲柄連桿機構3帶動剪切壁擺動,轉動力矩來自傳動箱4。傳動箱安裝在機身軸的安裝架上,箱內有兩根軸,主動軸下端通過聯軸器與液壓馬達相連,主動軸上端與曲柄相連。主動軸通過一對相互嚙合的直齒輪將運動傳遞給從動軸上端部的另一個剪切臂。液壓馬達轉動時,便可完成一對剪切臂的擺動。剪切臂末端固定著兩把剪切刀片,當兩個剪切臂協動時,即可將黏性液流剪切成料滴。 
                                                                                                  
                                                                                                                 圖9-2機身軸的結構
                                                                                    1-螺母;2一導套;3-錐套;4-安裝架;5-機身軸;6-推力球軸承 
          玻殼生產工藝要求剪切臂的剪切定位動作迅速準確,而擺動的剪切臂轉動慣量較大,為 此機床中設置有圖4所示的減速止停機構,剪切臂減速的動作是通過控制裝在液壓馬達出 口處的減速閥6內閥心的工作位置來實現的。在傳動箱從動軸下端裝有安裝盤1,盤形凸輪 2通過螺釘固定在安裝盤上,盤形凸輪和安裝盤周向都有腰形槽,以方便調整凸輪升程。與 減速閥連接的壓板5上裝有滾子4,通過凸輪可以改變減速閥閥心的工作位置,使液壓馬達 減速。剪切臂的止停通過與減速閥并行安裝的止停液壓缸來實現。當活塞桿外伸時,裝在安 裝盤上的止動塊3使液壓馬達停止轉動,確保剪切臂準確定位。當活塞伸縮時,液壓馬達繼 續轉動輸出力矩,使剪切臂重復完成剪切任務。 
                                                                            
                                                                                                           圖9-3 機身軸的結構
                                                                                     1-剪切臂;2-主軸;3-1#1柄連桿機構;4-傳動箱
剪切臂上端的復合安裝板上設置了循環水冷卻系統,確保機床正常工作的溫度范圍。機 身上安裝剪切臂的主軸設計成中空結構,內部通冷卻循環水降低系統溫度。
調整機構采用主、副板形式,主板固定不動,副板上開有可以自由地左、右、前、后調整的導向槽,機床的機身吊裝在副板上,當副板在主板上移動時,便可實現對機床的位置調節。另外,直接與熔流接觸的剪切刀片采用特制的耐熱合金鋼材料制成,確保刀具使用壽命。 
                                                                                      
                                                                                                          圖9-4減速止停機構示意圖
                                                                                1-安裝盤;2-盤形凸輪;3-止動塊;4-滾子;5-壓板;6-減速閥 
                                                                                         
                                                                                                          圖9-5剪切機床液壓驅動系統原理圖
1-定量液壓泵;2-溢流閥;3-節流閥;4-蓄能器;5-減速閥;6-雙向定量馬達; 7-雙桿液壓缸;8-單向節流閥;9-=位四通電磁換向閥;10-減壓閥;11-冷卻器
         液壓系統及其工作原理
          圖5所示為該剪切機床的液壓系統原理圖,該系統采用定量液壓泵(葉片泵)1供油,執行器為驅動剪切臂擺動的雙向定量液壓馬達6和擔當止動功能的雙桿活塞缸7,泵的工作壓力由溢流閥2設定,液壓缸的工作壓力由減壓閥10控制,其運動方向由二位四通電磁換向閥9控制。
          液壓泵輸出的高壓油(5MPa)經節流閥3和單向節流閥8進入液壓馬達6,馬達帶動傳動箱內的主軸回轉,經過曲柄連桿機構使剪切臂動作,剪切到位后,箱體上與從動軸相連的可調凸輪通過滾子和壓板使減速閥5的閥心位置改變,開度減小、液阻增大,馬達輸出力矩減小。剪切臂剪切到位后發信使電磁換向閥9動作,液壓泵1的高壓油經減壓閥10(壓力為3MPa)和換向閥9進入液壓缸,缸的活塞桿伸出,剪切臂止動。蓄能器4可實現短期內大量供油,以提高剪切臂動作速度,減小料滴剪切痕。系統設有溫度傳感器控制的冷卻器11,以便在油液溫度高于系統設定值時,通過冷卻器11,使油溫降低,確保系統正常工作。
          技術特點
          1)該液壓剪切機床結構新穎、選材方便、工藝性好、精度高;剪切臂上、下、左、右調節平滑自由。兩臂間隙小,運動自如。
          2)采用液壓傳動,所以剪切平穩,剪切痕小、輕,且無沖擊;適合于防眩玻璃生產;使用壽命長。
          3)液壓系統采用定量泵供油,采用節流閥調節兩個執行器的總流量;液壓馬達油路采
用單向節流閥調速,通過減速閥實現剪切到位后,馬達輸出力矩的減小。通過蓄能器實現短
期內大量供油,加快剪切臂動作速度,減小料滴剪切痕。 
         4)系統的溫度控制裝置提高了其工作可靠性。


本文標題:家用電器制造業中的液壓系統


分類:液壓行業知識
標簽: