壓鑄機液壓系統
首頁 ? 液壓行業知識 ? 壓鑄機液壓系統
  該機為臥式冷室壓鑄機,公稱合型力為2923kN壓射力為177-392kN,可壓鑄的壓鑄件最大投影面積為800cm^2,最大重量為4.5kg(鋁合金)。壓鑄機的壓射活塞運動速度不得低于4.5m/s,壓射缸中增壓后的最大丁作壓力為28MPa,最短的建壓時間≤0.03s,要求能無級調節壓射活塞速度和增壓壓力。
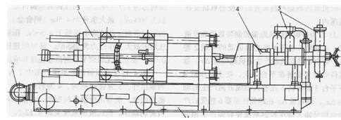
圖1為壓鑄機外型圖,圖中l為床身,2為泵組件,3為合型機構,4為后射機構,5為高能器組件。機器由電器系統控制,由液壓系統完成所需的動作。該機液壓系統見圖4.12-2。臺型缸1運動進行合型,為了使較小的合型缸產生很大的合型推力,采用曲拐連桿擴力機構。合型過程是先低壓驅動以保護壓鑄型,再進行高壓閉鎖。當合型到位后,插入型芯,此后一定量的金屬液澆人壓射室中,然后壓射缸2動作進行壓射,為了減少空氣的卷入,壓射開始階段用較低的速度,當金屬液完全充滿壓射室及橫澆道時,立即高速壓射以得到表面清晰的鑄件。為了得到致密的鑄件,在金屬液完全充滿型腔的瞬間,增壓器3立即作用,使金屬液馬上處于高壓下進行凝固,此種高壓一直保持到規定的冷卻時間。這時進行開型動作,壓射頭同時跟出(如果開型前要先抽出型芯,則抽芯缸4或24動作,抽芯后才能開型),開型到位后,頂出缸5推動頂出板將鑄件由壓鑄型頂出。壓射活塞回程,頂出缸返回,開始準備下次工作循環。為了保證鑄件質量,蓄能器30的壓力必須達到規定值后,才允許進行壓射動作。另外,根據零件的結構,可采用多種插芯和抽芯程序,即先插芯后臺型或先合型后插芯,而抽芯與開型的順序則與插芯合型相反,機器的電器系統已備好程序選擇。
圖1壓鑄機外型圖
  為了達到規定的壓射速度、壓射力和增壓建壓時間,本系統采用了帶蓄能器的液壓驅動方式,以滿足壓鑄工藝的特殊要求,達到節能的目的。由于快壓射和增壓時所需壓力油的瞬時流量達4200L/min,采用了專用錐閥。
  雙聯葉片泵的工作壓力分別靠溢流閥41和溢流閥14定壓,低壓泵6為3.4MPa;高壓采7為11.8MPa。泵電動機啟動時,卸荷用電磁換向閥8的電磁鐵1YA通電,動閥8處于左位,閥10開啟,高壓泵7卸荷,同時電磁鐵2YA通電,閥9處于右位,使插裝閥Il開啟,低壓泵6處于卸荷狀態。當泵電動機達到正常轉速后,1YA及2YA斷電,雙泵同時向管路充壓。肖管路壓力達到-3.4 MPa時,低壓泵6開始卸荷,高壓泵繼續向管路允壓直到管路壓力達到11.8MPa后,高壓泵7也卸荷,高壓泵卸荷的指令由壓力繼電器12發出。在雙泵卸荷期間,管路壓力靠蓄能器22,31連接后的壓力油使換向閥13右位工作,壓力油經閥13節流閥41進入合型缸可維持系統壓力。如果壓力繼電器12及卸荷溢流閥14失靈時,保險壓力繼電15會在管路壓力達到13.8MPa時,自動切斷泵電動機的電源,機器停止運轉。本機器的臺型液壓系統采用了插裝閥。先導閥16的電磁鐵3YA通電時,閥2l開啟,壓力油進入合型缸l的無桿腔,進行合型,合型缸有桿腔的油則經插裝閥17流回油箱。合型到一定位置時,行程開關使先導換向F閥8的電磁鐵4YA通電,系統便在壓力閥18調定的壓力下進行低壓(1.4WIPa~2.5MPa)保護合型,直到保護終了行程開關切斷4YA并使5YA、6YA通電,蓄能器22的油經裂的閥23、閥24又在高壓下快速合型,直至合型完成。同理,3YA斷電,7YA通電即可完成開型動作。臺型部分的液壓系統,除完成開合型動作外,還控制機器的插芯、抽芯,鑄件頂出及頂出返回等動作,這些都是由各自的電液換向閥來實現的。25為控制靜型抽芯缸24的換向閥,26、27為控制動型抽芯缸4的換向閥,28為控制頂出缸5的換向閥。單向閥29可防止壓射時可能發生的型芯后退危險。
壓射部分液壓系統要能滿足瞬時大流量供油和快速增壓,同時虛將液壓沖擊值限制在規定范圍內。本系統采用了由兩個蓄能器30、31組成的雙回路系統,因而提高了系統工作的穩定性和獨立可調性。電液換向閥19控制慢壓射及壓射程動作,當電磁鐵8YA通電時,高壓泵7來的油經泵的32、閥19進入壓射缸2右腔進行慢壓射,壓射活塞慢速移動到一定位置時,行程開關使先導閥20的電磁鐵9YA通電,快壓射33開啟,蓄能31、22相連后的壓力油和高壓泵7來的油合流進入壓射缸2右腔,實現級快壓射。與9YA同時通電的時間繼電器延時之后使10YA通電,閥39、34開啟進行第二級快壓射。壓鑄工藝要求,在型腔被金屬液充滿的瞬間,即壓射活塞快壓射動作一停止,必須立即增壓,以保證得到高質量的壓鑄件。為此目的,本系統采用了壓力式自動增壓先導閥35,當壓射管路壓力升高到一定值時,11YA通電,閥37左位工作,增壓先導閥35左位工作。增壓主閥42迅速打開,增壓蓄能器30中的壓力油立即經42進入增壓器3,進行增壓。由于采用了無背壓式增壓器,保址了增壓的快速完成,同時,增壓的大小也完全取決于增壓蓄能器30中的壓力值,該壓力可借助于充液減壓閥36和向增壓蓄能器30充氮氣經并聯的氣動溢流閩來進行調節。另外,在壓射缸回油管路中有專用單向閥38,當9YA通電使閥33開啟實現一級快速壓射時,壓力油經閥20使單向閥38開啟,壓射缸有桿腔的油直接閥38的大徑油管回油而不經過慢壓射閥19,從而大大降低了壓射缸剛油的背壓,從而實現快速排油,提高壓射速度。當12YA通電后閥19右位工作,來自泵7的油可經閥32、閥19到缸2的有桿腔,使其活塞退回。
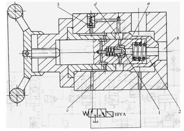
基于壓鑄成型下藝的特殊要求,壓射部分液壓管路的設計流速,一般可取25~30m/s,否則液壓管路和元件將變得十分龐大,使整個壓射機構難于安排。蓄能器按絕熱狀態計算。方向閥要滿足快速啟動和大流量的要求。第一級快速壓射閥34是普通插裝閥,第一級快速壓射閥是一種特殊結構的插裝閥,它允許通過的壓力油的流量不低于4200L/min,具有快速啟動和自動關閉的性能,不需要大的先導閥控制,其結構簡圖見圖3。閥的a腔與壓射蓄能器22和31相通,b腔接壓射缸的無桿腔,當先導電磁閥10YA動作時,c腔回油并向l左腔回油,其閥芯打開,d腔中的油流進b腔。于是主閥芯2左移,使a腔接通,進行快速壓射。快壓射結束時,10YA斷電,壓力油進入c腔,一路關閉單向閥,另一路經單向閥3進入d腔關閉主閥芯2。
圖3壓鑄機快速壓射閥

本文標題:壓鑄機液壓系統


分類:液壓行業知識
標簽: