產品分類
聯系我們
產品搜索
|
|
文件名:WK系列液壓傳動裝置
|
|
|
扭矩:1000~45000N.M
轉速:1~80r/min
|
WK3系列回轉傳動裝置選型說明
(1)、WK液壓傳動裝置允許在高背壓下工作。在連續工作是,使用背壓10MPA.
(2)、殼體允許最高壓力為0.3MPa,如有特殊要求,請與廠家聯系。
(3)、液壓油:建議使用高質量、防泡沫、抗氧化的礦基液壓油,理想工作油溫30℃-50℃,允許油溫-20℃~80℃,當油溫低于10℃時,必須用低凝液壓油. 液壓油的粘度為40~60厘沲,允許為5~300厘沲.
(4)、液壓油過濾精度推薦為25um,或更高過濾精度。
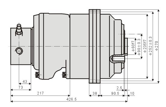
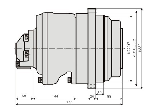
(5)、液壓傳動裝置均可雙向旋轉,具體轉向見附圖。如用戶要求與圖示轉向相反,請在訂貨時注明。
(6)、泄油管定位:WK傳動裝置允許任何方向安裝:為保證馬達內個運動副的潤滑,要求在工作之前將馬達內充滿液壓油,泄油口位置的選擇必須保證運轉中殼體充滿液壓油。
(7)、配流器進出油口方向:配流器進出油口方向允許按外形安裝聯接位置以72°為間隔旋轉,但當松開螺釘旋轉時,不能損壞平面O形圈的密封功能。
.jpg)
.jpg)
WK3液壓傳動裝置性能參數
|
型號 |
總排量 |
扭矩 |
轉速范圍 |
轉動比 |
制動器型號 |
|||
|
額定 |
最高 |
型號 |
排量ml/r |
|||||
|
WK3-1000 |
1005 |
2200 |
2800 |
0~90 |
AKS1-200 |
201 |
5(5.5) |
Z3 |
|
WK3-1200 |
1215 |
2600 |
3300 |
0~90 |
AKS1-250 |
243 |
5(5.5) |
Z3 |
|
WK3-1600 |
1595 |
3000 |
3800 |
0~90 |
AKS1-300 |
290 |
5(5.5) |
Z3 |
|
WK3-2450 |
2380 |
5600 |
6700 |
0~90 |
AKS1-350 |
340 |
7 |
Z3 |
|
WK3-2500 |
2337.5 |
4582 |
5892 |
0~90 |
AKS1-420 |
425 |
5.5 |
Z3 |
|
WK3-2750 |
2711.5 |
5316 |
6835 |
0~90 |
AKS1-500 |
493 |
5.5 |
Z3 |